Площадь: 191 кв.м.



Этажность: 2
Дом можно построить из:

• Кирпича
• Газоблока
В стоимость входит:

• Фундамент - буронабивные сваи с ростверком
• Устройство бетонных полов
• Устройство закладных каналов под ввод и вывод инженерных коммуникаций
• Наружные стены
• Внутренние стены (перегородки)
• Межэтажное перекрытие
• Крыша
• Дверные и оконные проемы в соответствии с проектом

Возможно внесение любых изменений в проект
Планировка первый этаж
Количество санузлов: 2
Количество комнат: 5
Проект дома Жемчуг
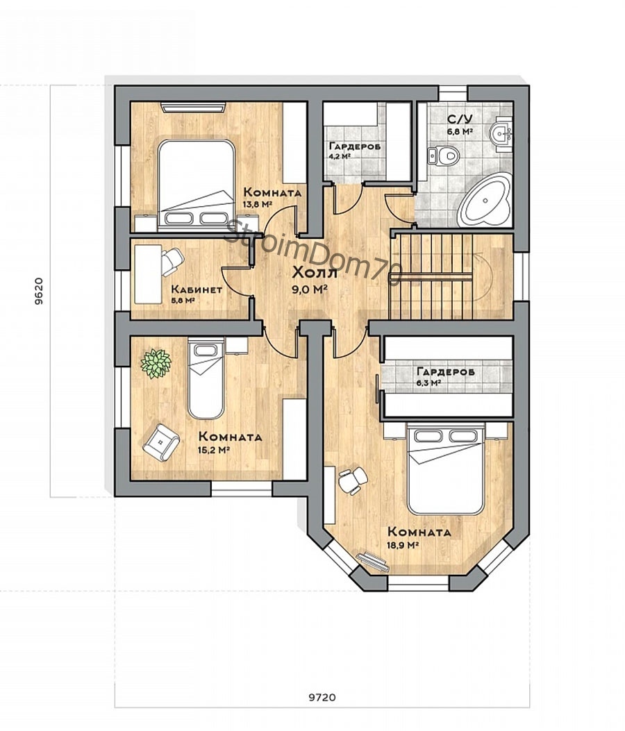
Планировка второй этаж
Рассчитайте стоимость вашего будущего дома
Made on
Tilda