Площадь: 153 кв.м.
Этажность: 2
Консультация специалиста
Узнать стоимость своего дома
Дом можно построить из:
• Профилированного бруса
• Нестроганого бруса
• Пеноблоков
В стоимость входит:
• Фундамент
• Лаги, балки
• Сруб
• Стропильная система
• Крыша
• Дверные и оконные проемы в соответствии с проектом
Возможно внесение любых изменений в проект
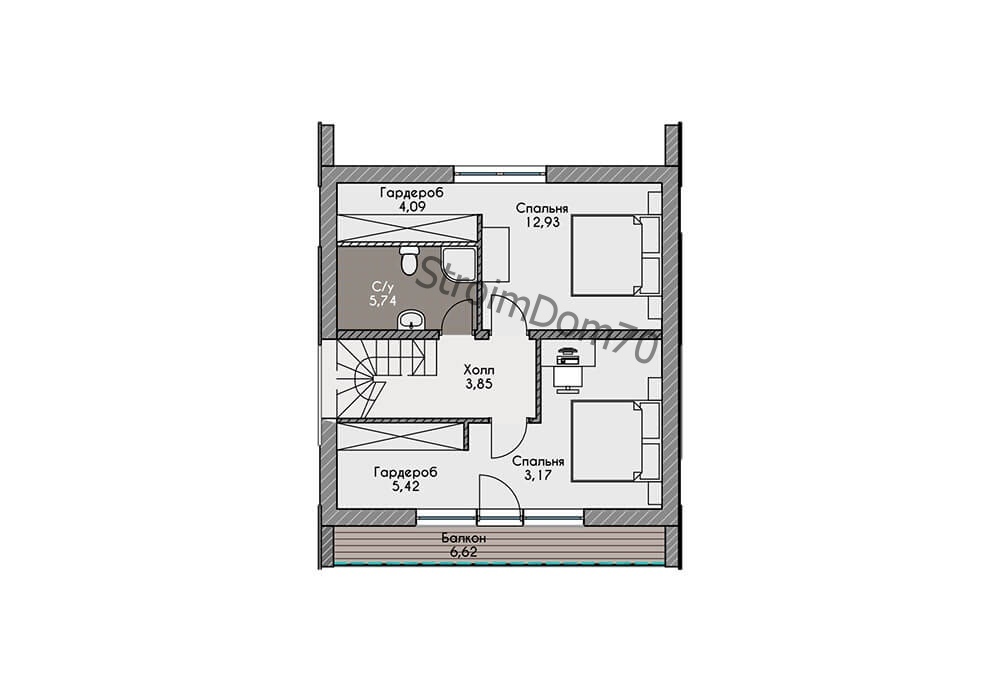
Количество санузлов: 2
Количество спален: 2
Планировка второй этаж
Планировка первый этаж
Проект дома Бермаго
[{"lid":"1531306243545","ls":"10","loff":"","li_type":"in","li_title":"\u0418\u043c\u044f","li_ph":"\u0418\u043c\u044f","li_req":"y","li_nm":"\u0418\u043c\u044f"},{"lid":"1531306540094","ls":"20","loff":"","li_type":"in","li_title":"\u0412\u0430\u0448 \u043d\u043e\u043c\u0435\u0440 \u0442\u0435\u043b\u0435\u0444\u043e\u043d\u0430","li_ph":"\u0422\u0435\u043b\u0435\u0444\u043e\u043d","li_req":"y","li_nm":"\u0412\u0430\u0448 \u043d\u043e\u043c\u0435\u0440 \u0442\u0435\u043b\u0435\u0444\u043e\u043d\u0430"}]
[{"lid":"1620458886858","ls":"10","loff":"","li_type":"in","li_name":"who1.1","li_title":"\u041f\u043b\u043e\u0449\u0430\u0434\u044c","li_ph":"\u0416\u0435\u043b\u0430\u0435\u043c\u0430\u044f \u043f\u043b\u043e\u0449\u0430\u0434\u044c \u0434\u043e\u043c\u0430","li_req":"y","li_nm":"who1.1"}]
[{"lid":"1620458507122","ls":"10","loff":"","li_type":"sb","li_name":"who1.2","li_title":"\u042d\u0442\u0430\u0436\u043d\u043e\u0441\u0442\u044c","li_req":"y","li_variants":"1\n2\n3","li_nm":"who1.2"}]
Рассчитайте стоимость вашего будущего дома
[{"lid":"1620459513936","ls":"10","loff":"","li_type":"in","li_name":"who1.5","li_title":"\u041e\u043f\u0438\u0441\u0430\u043d\u0438\u0435","li_ph":"\u041e\u043f\u0438\u0448\u0438\u0442\u0435 \u0434\u0435\u0442\u0430\u043b\u0438 \u0442\u0440\u0435\u0431\u0443\u044e\u0449\u0438\u0435 \u0443\u0442\u043e\u0447\u043d\u0435\u043d\u0438\u0435","li_nm":"who1.5"}]
[{"lid":"1620459160728","ls":"10","loff":"","li_type":"sb","li_name":"who1.4","li_title":"\u0415\u0441\u0442\u044c \u043b\u0438 \u0443\u0447\u0430\u0441\u0442\u043e\u043a?","li_req":"y","li_variants":"\u0423\u0447\u0430\u0441\u0442\u043e\u043a \u0435\u0441\u0442\u044c, \u0432 \u0447\u0435\u0440\u0442\u0435 \u0433\u043e\u0440\u043e\u0434\u0430\n\u0423\u0447\u0430\u0441\u0442\u043e\u043a \u0435\u0441\u0442\u044c, \u0437\u0430 \u0433\u043e\u0440\u043e\u0434\u043e\u043c\n\u0423\u0447\u0430\u0441\u0442\u043e\u043a \u0435\u0441\u0442\u044c, \u0437\u0430 \u0433\u043e\u0440\u043e\u0434\u043e\u043c \u0434\u0430\u043b\u0435\u0435 100 \u043a\u043c\n\u0423\u0447\u0430\u0441\u0442\u043a\u0430 \u043d\u0435\u0442","li_nm":"who1.4"}]
[{"lid":"1531306243545","ls":"10","loff":"","li_type":"sb","li_name":"who1.3","li_title":"\u041c\u0430\u0442\u0435\u0440\u0438\u0430\u043b","li_req":"y","li_variants":"\u0418\u0437 \u0431\u043b\u043e\u043a\u043e\u0432\n\u0418\u0437 \u0440\u0443\u0431\u043b\u0435\u043d\u043d\u043e\u0433\u043e \u0431\u0440\u0435\u0432\u043d\u0430\n\u0418\u0437 \u043f\u0440\u043e\u0444\u0438\u043b\u0438\u0440\u043e\u0432\u0430\u043d\u043d\u043e\u0433\u043e \u0431\u0440\u0443\u0441\u0430\n\u0418\u0437 \u043a\u0438\u0440\u043f\u0438\u0447\u0430","li_nm":"who1.3"}]
[{"lid":"1531306243545","ls":"10","loff":"","li_type":"in","li_name":"who1.7","li_title":"\u0422\u0435\u043b\u0435\u0444\u043e\u043d","li_ph":"\u0412\u0430\u0448 \u0442\u0435\u043b\u0435\u0444\u043e\u043d","li_req":"y","li_nm":"who1.7"}]
[{"lid":"1531306243545","ls":"10","loff":"","li_type":"in","li_name":"who1.6","li_title":"\u0418\u043c\u044f","li_ph":"\u0418\u043c\u044f","li_req":"y","li_nm":"who1.6"}]
Расчитать
[{"lid":"1531306243545","ls":"10","loff":"","li_type":"in","li_name":"\u041f\u043b\u043e\u0449\u0430\u0434\u044c","li_title":"\u041f\u043b\u043e\u0449\u0430\u0434\u044c","li_ph":"\u041f\u043b\u043e\u0449\u0430\u0434\u044c","li_req":"y","li_nm":"\u041f\u043b\u043e\u0449\u0430\u0434\u044c"},{"lid":"1531306540094","ls":"20","loff":"","li_type":"sb","li_name":"\u042d\u0442\u0430\u0436\u043d\u043e\u0441\u0442\u044c","li_title":"\u042d\u0442\u0430\u0436\u043d\u043e\u0441\u0442\u044c","li_req":"y","li_variants":"1\n2\n3","li_nm":"\u042d\u0442\u0430\u0436\u043d\u043e\u0441\u0442\u044c"},{"lid":"1620470022121","ls":"30","loff":"","li_type":"sb","li_name":"\u041c\u0430\u0442\u0435\u0440\u0438\u0430\u043b","li_title":"\u041c\u0430\u0442\u0435\u0440\u0438\u0430\u043b","li_req":"y","li_variants":"\u0418\u0437 \u0431\u043b\u043e\u043a\u043e\u0432\n\u0418\u0437 \u0440\u0443\u0431\u043b\u0435\u043d\u043d\u043e\u0433\u043e \u0431\u0440\u0435\u0432\u043d\u0430\n\u0418\u0437 \u043f\u0440\u043e\u0444\u0438\u043b\u0438\u0440\u043e\u0432\u0430\u043d\u043d\u043e\u0433\u043e \u0431\u0440\u0443\u0441\u0430\n\u0418\u0437 \u043a\u0438\u0440\u043f\u0438\u0447\u0430","li_nm":"\u041c\u0430\u0442\u0435\u0440\u0438\u0430\u043b"},{"lid":"1620470041095","ls":"40","loff":"","li_type":"sb","li_name":"\u0423\u0447\u0430\u0441\u0442\u043e\u043a","li_title":"\u0423\u0447\u0430\u0441\u0442\u043e\u043a \u0443\u0436\u0435 \u0435\u0441\u0442\u044c?","li_req":"y","li_variants":"\u0423\u0447\u0430\u0441\u0442\u043e\u043a \u0435\u0441\u0442\u044c, \u0432 \u0447\u0435\u0440\u0442\u0435 \u0433\u043e\u0440\u043e\u0434\u0430\n\u0423\u0447\u0430\u0441\u0442\u043e\u043a \u0435\u0441\u0442\u044c, \u0437\u0430 \u0433\u043e\u0440\u043e\u0434\u043e\u043c\n\u0423\u0447\u0430\u0441\u0442\u043e\u043a \u0435\u0441\u0442\u044c, \u0437\u0430 \u0433\u043e\u0440\u043e\u0434\u043e\u043c \u0434\u0430\u043b\u0435\u0435 100 \u043a\u043c\n\u0423\u0447\u0430\u0441\u0442\u043a\u0430 \u043d\u0435\u0442","li_nm":"\u0423\u0447\u0430\u0441\u0442\u043e\u043a"},{"lid":"1620470058000","ls":"50","loff":"","li_type":"in","li_name":"\u041e\u043f\u0438\u0441\u0430\u043d\u0438\u0435","li_title":"\u041e\u043f\u0438\u0441\u0430\u043d\u0438\u0435","li_ph":"\u041e\u043f\u0438\u0441\u0430\u043d\u0438\u0435","li_nm":"\u041e\u043f\u0438\u0441\u0430\u043d\u0438\u0435"},{"lid":"1620470072624","ls":"60","loff":"","li_type":"in","li_name":"\u0418\u043c\u044f","li_title":"\u0418\u043c\u044f","li_ph":"\u0418\u043c\u044f","li_req":"y","li_nm":"\u0418\u043c\u044f"},{"lid":"1620470082765","ls":"70","loff":"","li_type":"in","li_name":"\u0422\u0435\u043b\u0435\u0444\u043e\u043d","li_title":"\u0422\u0435\u043b\u0435\u0444\u043e\u043d","li_ph":"\u0422\u0435\u043b\u0435\u0444\u043e\u043d","li_req":"y","li_nm":"\u0422\u0435\u043b\u0435\u0444\u043e\u043d"}]
Made on
Tilda